THE .DWG FILES ARE COMPATIBLE BACK TO AUTOCAD 2000.
THESE AUTOCAD DRAWINGS ARE AVAILABLE TO PURCHASE AND DOWNLOAD NOW!
YOU WILL GET A DOWNLOAD LINK FOR ALL THE DRAWINGS THAT YOU PURCHASED.






Q&A
Q: HOW WILL I RECIEVE THE CAD BLOCKS & DRAWINGS ONCE I PURCHASE THEM?
A: THE DRAWINGS ARE DOWNLOADED AFTER YOUR PAYMENT IS CONFIRMED. YOU WILL ALSO BE EMAILED A DOWNLOAD LINK FOR ALL THE DRAWINGS THAT YOU PURCHASED.
Q: HOW MANY CAD BLOCKS OR DRAWINGS ARE IN EACH LIBRARY?
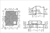
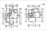
A: WHAT YOU SEE IS WHAT YOU GET! SO I HAVE PROVIDED PREVIEW SHOWING THE ENTIRE BLOCKS OR DRAWINGS SO YOU KNOW EXACLTY WHAT YOU ARE BUYING.























