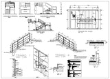
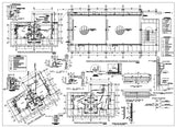
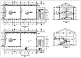
★【School, University, College,Campus CAD Design Project V.6】@Autocad Blocks,Drawings,CAD Details,Elevation

★【School, University, College,Campus CAD Design Project V.6】@Autocad Blocks,Drawings,CAD Details,Elevation
Most innovative architecture projects.You cad download all Autocad DWG files now!!
The .DWG files are compatible back to AutoCAD 2000.
These CAD drawings are available to purchase and download immediately!
Spend more time designing, and less time drawing!We are dedicated to be the best CAD resource for architects,interior designer and landscape designers.





Q&A
Q: How will I recieve the CAD blocks & drawings once I purchase them?
A: The drawings are downloaded immediately after your payment is confirmed.
You will be emailed a download link for all the drawings that you purchased.
Q: How many CAD blocks & drawings are in each product?
A: What you see is what you get! So I have provided previews showing the entire drawings so you know exaclty what you are buying.








